本套效果图裕中西里两居室,面积为60平米,装修风格为田园型装修,装修采用的是半包,整套装修费用为7万。
本套装修为田园型装修,餐厅地面采用地板装修,墙面采用的乳胶漆进行装修,吊顶采用石膏板进行平顶吊顶,加以吊灯进行装饰,白色的餐桌和带有粉色花布艺的椅子,餐桌上摆放白色的餐具,两盆花就好像都使得每一件产品像优雅成熟的中年女子含蓄温婉内敛而不张扬,散发着从容淡雅的生活气息。配合清纯酒香和植物芳香,空气中弥漫着幸福浪漫的气息。清新雅致、时尚温馨,将品酒的意境完美的呈现出来了。
1
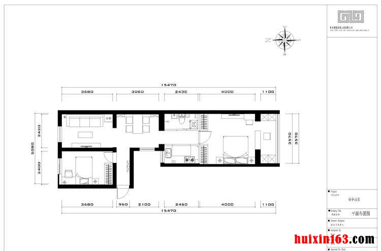
![]() 裕中西里60平米两居室田园型风格装修效果图-平面图
|
小区效果图说明
裕中西里位于北京海淀区四环马甸, 环境优雅,美观大方,生态良好,地理环境优越,周围交通非常便利,临近地铁十号线,乘坐公交||55, 83 , 305 ,315, 625, 670 ,909 ||,属于成熟社区,周围配套设施齐全。学校医院等配套设施健全。
本套效果图裕中西里两居室,面积为60平米,装修风格为田园型装修,装修采用的是半包,整套装修费用为7万。
本套装修为田园型装修,餐厅地面采用地板装修,墙面采用的乳胶漆进行装修,吊顶采用石膏板进行平顶吊顶,加以吊灯进行装饰,白色的餐桌和带有粉色花布艺的椅子,餐桌上摆放白色的餐具,两盆花就好像都使得每一件产品像优雅成熟的中年女子含蓄温婉内敛而不张扬,散发着从容淡雅的生活气息。配合清纯酒香和植物芳香,空气中弥漫着幸福浪漫的气息。清新雅致、时尚温馨,将品酒的意境完美的呈现出来了。 更多»推荐小区效果图
共0条 [查看全部] 相关评论
|