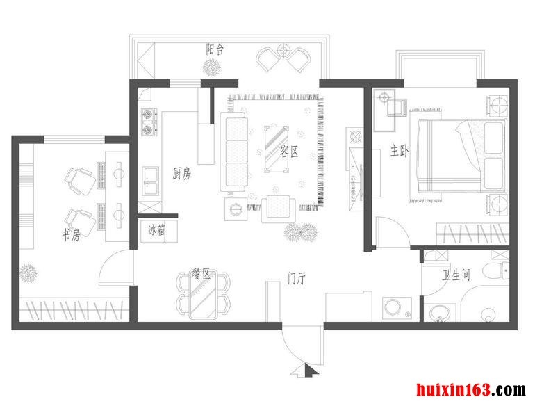
本套效果融景城两居室,面积为90平米,装修风格为现代简约型装修,装修采用的是全包,整套装修费用为12万。
本套装修为现代简约型装修,卧室地面采用地板装修,墙面采用墙纸进行装修,吊顶采用石膏板进行平顶吊顶,加以水晶灯进行装饰,卧室坐南朝北,走进卧室,一张白色的床映入眼帘,躺上去很舒服,抬头看着灯,四处绽放着灯的光芒,就像一个满天星一样,金光闪耀,在床头有一个床头架,书架上放置了都是最近读的书,有科学类,小说类的等等,到处弥漫着书的香味,窗外,清风习习,阳光明媚,整体给人一种清新,可爱的感觉。








