中海城香克林小区位于丰台区成寿寺路140号院,小区房屋均价在35886元/㎡左右,交通比较便利,有地铁10号线、亦庄线以及多条公交线路在此经过,小区周边的设施也比较完善,医院、商场、学校等应有尽有。
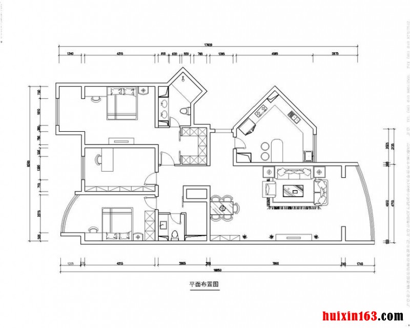
此房屋的面积为190平米的三居室,本套房屋的设计以现代简约风格为主,装修经费大概在19万元左右。
客厅中的装饰主要以暖色调为主,淡黄色的皮质沙发与软包的电视背景墙相呼应,整体效果展现出了装饰的协调性,一款白色的茶几摆放在沙发中间,独特的造型设计更是彰显除了现代装饰的时尚感,沙发上的黑白抱枕则适当的活跃了客厅中的气氛,儿童房的设计则充满了童趣,淡蓝色的墙壁上使用了白色的装饰做点缀,整体感觉非常的清新亮丽,有利于儿童的成长。








